
Servicios de Diseño y Mantenimiento
Ofrecemos servicios de diseño instalación y mantenimiento de sistemas de supresión en cocinas
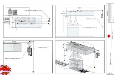
Diseño de Sistemas de supresión en cocinas
Ofrecemos un servicio de diseño del sistema en base a los planos que entregue el cliente ajustándonos a sus necesidades tanto del espacio arquitectónico como el espacio de la campana de la cocina, se realiza una ingeniería con el despiece de todos sus componentes y planos que ayuden a su correcta instalación




Servicios Profesionales
Nuestros servicios profesionales garantizan el correcto funcionamiento de los sistemas contra incendios.
Planos en d3
Realizar los planos en 3D nos ayuda a tener una mejor idea de cómo es la instalación y cuáles son las medidas exactas, por dónde puede realizarse el cruce de todas las tuberías evitando choque de sistemas.
